A delightful Victorian house spread over four floors situated in the conservation area of Winslow on Church Street, leading to the church and the town centre.
The house has been completely gutted and refurbished to the highest specification in the summer of 2020.
Our home in the beautiful ancient market town of Winslow, Buckinghamshire.
All the rooms feature Hypnos beds, the most comfortable beds in the world. Hypnos hold the Royal Warrant in the United Kingdom for supplying mattresses and divans to the British Royal family. There is one goose down and one duck down pillow for each guest.
There is one bathroom.
There is a fully equipped kitchen. Please see the details section below for full information about the kitchen.
There is a Sonos system throughout the house.
Accessibility, health and safety: This is an old property spread over four floors and with steep staircases which could pose difficulty to guests with limited mobility, or carrying babies. Young children should be supervised due to the steep stairs. Two stair gates are available if required.
There is also a picture of the staircase from the ground floor to the first floor below.
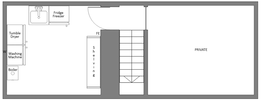
For floor plans of the house please click here.
For a Google Street view of the building and Church Street please click here.
The ancient market town of Winslow is a delightful tranquil spot in rural Buckinghamshire. About an hour and half by train from London, 10 minutes from Buckingham and less than 20 minutes from Silverstone.
Winslow was first recorded in a royal charter of 792-793 in which it was granted by Offa of Mercia to St Albans Abbey as Wineshauue. The Domesday Book of 1086 records it as Weneslai.
5 Guests
Total area: 120m2 excluding rear yard.
Sitting Room with log burner - 14.9 m2
Dining Room - 14.9 m2
Kitchen
Bedroom 1 - 12 m2
Master bedroom featuring a four poster king size bed.
Suitable for infant cotBedroom 2 - 12 m2
Twin or super-king.
Zip & link Beds 190cms x 90cms x 2Bedroom 3 - 12 m2
Single Bed.
190cms x 90cms1 Luxury Bathroom
Cellar with washing machine and tumble dryer.
South facing Yard with seating and table.
See the Google map above for the precise location of the house.
What Three Words Location: newsprint.rooting.upholds.
GPS Co-ordinates: 51.941762 Lat, -0.883630 Long
Address: 14 Church Street, Winslow, Buckinghamshire, MK18 3AN
The house is in a conservation area and is a short walk to the shops of the town.
- Central heating
- All windows double glazed
- Nespresso machine
- Cotton sheets, fluffy towels
- One goose and one duck down pillow for each guest.
- Hair dryer
- Bechstein Upright Piano (late 19th Century)
- Books and games
- Apple TV
- 49" Samsung The Frame TV, Bose speaker system
- Sonos Sound System throughout
- Free superfast fibre wifi internet access
- Bathroom Scales
- Braun Electric Tooth Brush
- Security safe
- Iron and Ironing Board
- Sonos system through out
- Sonos connect turntable and albums
- Apple iPad
- 49" Samsung The Frame TV in Sitting Room
- 43" Samsung Smart TV in The Study
- 43" Samsung Smart TV in Bedroom 3
- 2 Desks with dual screens in the the study
- Apple TV
- Alexa Show 5
- XBox 360
- Hi speed fibre broadband wifi internet access (400+ mbps)
- Netflix
- 360+ Movies
- Electric Vehicle Charging Point
- Miele combination oven and microwave
- Induction hob
- Fridge
- Fridge and freezer in cellar
- Dishwasher
- Washer machine in cellar
- Tumble dryer in cellar
- Nespresso machine
- Vitamix
- Juicer
- Crockery, cutlery and glassware
- Kettler & Toaster
- Hoover
“The property is superb. So well appointed - from fabulous Italian linens to a well stocked (with utensils) kitchen this house is very impressive. The location is also fabulous, charming village, great farm food shop. Highly recommended.”
“Victorian house superbly modernised to a high standard. Well equipped and stocked with essential and useful items. Approachable helpful owners. They compiled a fairly comprehensive write up of useful information related to house, instructions on how to use some of the items and equipment in the house, Winslow town and surrounding places of interest to visit and recommendations as to places to dine etc. We stayed for a week and visited many interesting and beautiful places in the immediate vicinity of Winslow and others further away. A busy holiday but we all thoroughly enjoyed it and have no hesitation in recommending this property to others.”
“What can I say! The house is more beautiful in person that the pictures. The location is incredible for doing many things. We walked Winslow as we have family that lives there as well has took my daughter trick or treating for Halloween. Very easy to walk to store or restaurants and the street the house is on is like out of a fairytale. If you get a chance to visit this gem do so!”
“The home was everything we hope for and more. The location was perfect. The hosts were responsive and helpful. They had thought of every possible need and gave clear instructions. Thank you.”
“Lovely house, and probably the most thoughtfully equipped and laid-out Airbnb we've stayed at. Very much enjoyed our two-week stay. We found the bedrooms and living room cozy and comfortable, and the kitchen and laundry room were perfect for the needs of a family of 5. The town is also charming. Michael was an extremely responsive and helpful host. Would highly recommend. Thank you for everything, Michael! We really enjoyed the house, and I don't think the kids had slept quite as well in a long time :-) The Christmas tree was also a lovely touch. Very much appreciate your help with everything along the way.”
“We stayed at 14 Church St whilst visiting family and loved it. It's a great location and is beautifully decorated inside. The beds are super comfy and the shower/bathroom is a delight! There are some snazzy features too like the boiling hot water tap function which I'm very jealous of! Communication from Michael and Karen were super helpful and answered any questions I had quickly. Would be delighted to stay here again!”
“Just perfect.”
Last updated: 30 October 2025 14:46 GMT
This document was printed on 27 February 2026 21:14